ბიოფილური ოფისები: ლანდშაფტი და სამუშაო გარემო

ბიოფილურ დიზაინს აქვს უნარი გაფილტროს ხმაური, განათება და უზრუნველყოს უფრო მსუბუქი კლიმატი, რაც ხელს უწყობს გუნდის პროდუქტიულობას და მეტად ოპტიმიზებულ სერვისებს.
ჩვენ შეგირჩიეთ უნიკალური პროექტები მსოფლიოს სხვადასხვა ქვეყნებიდან, სადაც ლანდშაფტის გამოყენების სხვადასხვა გზებია ნაჩვენები.

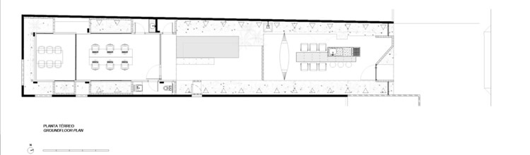
„გარე ოფისის“ შექმნის კონცეფციით, MIA Design Studio, Mr.Green’s Office-ის დიზაინის შექმნისას, სივრცის ავთენტურობაზე ბუნებრივი ელემენტების ლითონთან კონტრასტული გამოყენებით მუშაობდა. აღნიშნული მიდგომა ხელს უწყობს სინათლის რეგულირებას და მზის ჩასვლისას სხივების არეკლვების შემცირებას.

Presidente Prudente-ში, ქალაქში, რომელიც ცნობილია თავისი სიცხით, მდებარე ჟარდიმ პაულისტას სტუდიას, აქვს შიდა ეზო და მცენარეები, რათა შექმნას სასიამოვნო მიკროკლიმატი ჯვარედინი ვენტილაციისა და ბუნებრივი განათების მეშვეობით.

ბიოფილური ოფისის პირველ სართულზე განთავსებულია ღია სამუშაო ადგილი, რომლის ცენტრში აქცენტირებულია მცირე მწვანე ბაღი, სხვადასხვა სახეობის მცენარეებით, რომლებიც ხელს უწყობენ ნახშირორჟანგის შეწოვას გარემოდან და ქმნის გრილ მიკროკლიმატს. Andyrahman Architect-მა პროექტს დაამატა ბიოფილური არქიტექტურის კიდევ ერთი არსებითი ელემენტი: წყალი – რომელიც ამოტუმბვისას გამოსცემს დამამშვიდებელი ეფექტის ხმებს და ქმნის უფრო ბუნებრივ, სინესთეტიკურ ატმოსფეროს.

მანაუსი, Laurent Troost Architectures-ის ინდუსტრიული ტიპოლოგია Tropical Shed-ში (ტროპიკული ფარდული). „სამგანზომილებიანი პორტიკების თანმიმდევრობა, რომელიც დამზადებულია გლუვი არმატურისგან, განკუთვნილია მცოცავი მცენარის რამდენიმე სახეობისთვის. აღნიშნული სახეობის მცენარეები სწრაფად მზარდია, შესაბამისად მარტივადაა შესაძლებელი შეიქმნას ტროპიკული, ჰაეროვანი და გამაგრილებელი მიკროკლიმატი.
ჯილდოს მფლობელი ესპანური ოფისი Selgascano სპეციფიკური დამახასიათებელი დიზაინის ენით გამოირჩევა, რაც ბუნებაში ჩაძირული მუშაობის შეგრძნებას ქმნის. აღნიშნული პროექტის არქიტექტორებმა გადაწყვიტეს, რომ ბაღის ოფისში გადატანის ნაცვლად, ოფისი გადაეტანათ ბაღში.
დაბოლოს, ურბანულ გარემოში მწერებისა და ფრინველების გადაადგილებისთვის ბიოლოგიური დერეფნის შექმნის სურვილით, Husos Archictets-მა შეიმუშავა მწვანე ფასადი, რომელიც უზრუნველყოფს ხელსაყრელ მიკროკლიმატს ცხოველებისთვის რაც ხელს უწყობს შენობის ენერგიის მოხმარების შემცირებას.
UP